Ogłoszenie o sprzedaży lokali handlowo - usługowych
Miejskie TBS Sp. z o.o. w Koninie oferuje na sprzedaż lokale handlowo – usługowe, w doskonałej lokalizacji, które zostaną wybudowane do dnia 30 czerwca 2026 roku i zlokalizowane na parterze budynku mieszkalnego wielorodzinnego przy ul. Grunwaldzkiej 2A w Koninie na działkach o nr: 1052 i 234/2:
- lokal nr LU-1 – o powierzchni 74,15 m2
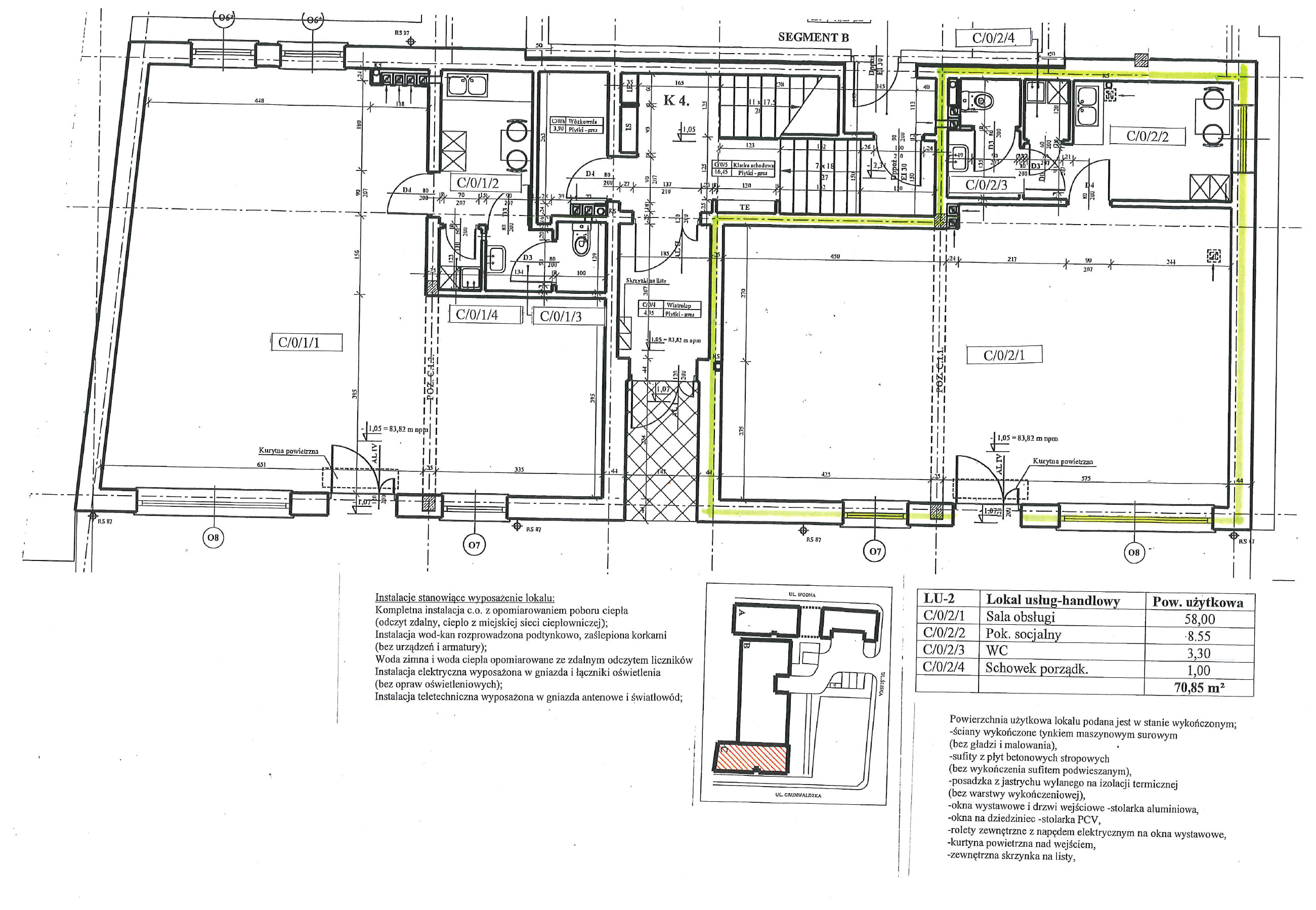
- lokal nr LU-2 – o powierzchni 70,85 m2
Lokale handlowe będą posiadały oddzielne wejście od ul. Grunwaldzkiej. Budynek jest trzykondygnacyjny.
Wyposażenie – instalacja elektryczna, wod.-kan., c.o., wentylacyjna, teletechniczna.
Cena 14.900,00 zł netto za 1 m² lokalu.
Informacje szczegółowe można uzyskać osobiście w siedzibie Spółki: ul. 3 Maja 21, 62-500 Konin, pokój nr 4 (parter) od poniedziałku do piątku w godzinach od 7.30 do 15.30. lub pod numerem telefonu 63 245 75 41 wew. 2.
Nabywca lokalu jest zobowiązany do wpłaty I raty, stanowiącej 20% całkowitej ceny lokalu na rachunek bankowy Miejskiego TBS Sp. z o.o. w Koninie w ciągu 7 dni od podpisania umowy przedwstępnej na w/w lokal.
Pozostała część ceny będzie rozłożona na kolejne raty - przy czym ostatnia rata musi być zapłacona najpóźniej przed dniem przekazania kluczy do lokalu.
Kontakt
-
Miejskie Towarzystwo Budownictwa Społecznego Sp. z o.o. w Koninie
62 -500 Konin, ul. 3 Maja 21
tel. 63 245 75 41, 63 245 76 18
e-mail: sekretariat@mtbs.konin.pl



